基站防雷与接地技术规范详解
总则与目标
1 目的 基站作为无线通信网络的核心节点,其设备价值高昂,且承载着不间断的业务,雷电及其电磁脉冲是导致基站设备损坏、通信中断的主要原因之一,本规范的目的是通过科学、系统的防雷与接地设计,将雷电灾害对基站设施和人员安全的风险降至最低,确保通信网络的稳定、可靠运行。

2 基本原则 基站防雷接地系统设计应遵循以下核心原则:
- 综合治理: 采用“外部防雷”与“内部防雷”相结合,“防直击雷”、“防感应雷”、“防雷电波侵入”并重的综合治理策略。
- 等电位连接: 这是现代防雷技术的核心,将基站内所有不带电的金属物体(设备外壳、线缆屏蔽层、金属走线架、钢筋等)通过接地汇集线或等电位连接端子板进行电气连接,消除电位差,防止设备因雷击高电位差而损坏。
- 接地分流: 为雷电流提供多条低阻抗的泄放入地路径,迅速将巨大的雷电流安全导入大地,避免其通过设备或线缆进行泄放。
- 屏蔽与隔离: 利用建筑物和机柜的金属外壳屏蔽电磁脉冲,并通过隔离变压器、浪涌保护器等设备隔离雷电压。
- 冗余与可靠: 接地系统应具备足够的冗余和可靠性,确保在任何情况下都能发挥作用。
系统构成
一个完整的基站防雷接地系统主要由以下几部分构成:
| 构成部分 | 主要功能 | 关键设备/措施 |
|---|---|---|
| 接地系统 | 核心,为雷电流和故障电流提供泄放入地的路径,建立系统基准电位。 | - 接地体:垂直接地极(角钢、铜包钢)、水平接地极(扁钢、圆钢) - 接地汇集线:总接地排、分接地排 - 接地引入线:连接接地体与接地汇集线 |
| 接闪器 | 外部防雷,拦截雷云对建筑物的直接放电,保护建筑物和外部设备。 | - 避雷针 - 避雷带 - 避雷网 |
| 引下线 | 外部防雷,将接闪器拦截的雷电流安全、快速地引至接地系统。 | - 建筑物结构钢筋(推荐) - 专用的扁钢或圆钢 |
| 等电位连接网络 | 内部防雷,消除系统内各金属部件间的电位差,是防止内部设备损坏的关键。 | - 接地汇集排 - 等电位连接端子板 - 等电位连接线 |
| 浪涌保护器 | 内部防雷,在雷电压浪涌沿线路侵入时,迅速将过电压限制在设备安全范围内,并泄放雷电流。 | - 电源SPD(安装在交流配电箱、直流配电柜) - 信号SPD(安装在天馈、传输、监控等线路上) |
| 屏蔽措施 | 内部防雷,减少电磁脉冲对内部设备和线缆的感应耦合。 | - 金属门窗、金属屋顶 - 金属机柜、走线槽 - 屏蔽线缆 |
关键技术规范详解
1 接地系统
-
接地电阻要求:
- 综合通信局站: ≤ 1 Ω
- 移动通信基站(市区): ≤ 5 Ω
- 移动通信基站(郊区/农村): ≤ 10 Ω
- 注:对于土壤电阻率极高的地区,可适当放宽,但不宜超过15 Ω,并应采取降阻措施。
-
接地体设计:
(图片来源网络,侵删)- 形式: 通常采用“环形接地”或“星形接地”方式,环形接地能有效均衡电位,减少跨步电压,是首选。
- 材料: 垂直接地极宜用热镀锌角钢(50x50x5mm, L=2.5m)或铜包钢;水平接地极宜用热镀锌扁钢(40x4mm)或圆钢(Φ10mm)。
- 布局: 接地体应围绕建筑物基础或机房布局,埋深一般不小于0.7米,当接地电阻不达标时,可增加接地极数量或使用降阻剂、离子接地极等。
-
接地汇集线:
- 总接地排: 应设在机房内靠近入口处,与接地引入线可靠连接。
- 分接地排: 可在设备机柜、走线架旁设置,用于就近连接设备。
- 材料: 截面积应足够,通常采用铜排(如30x3mm或40x4mm)。
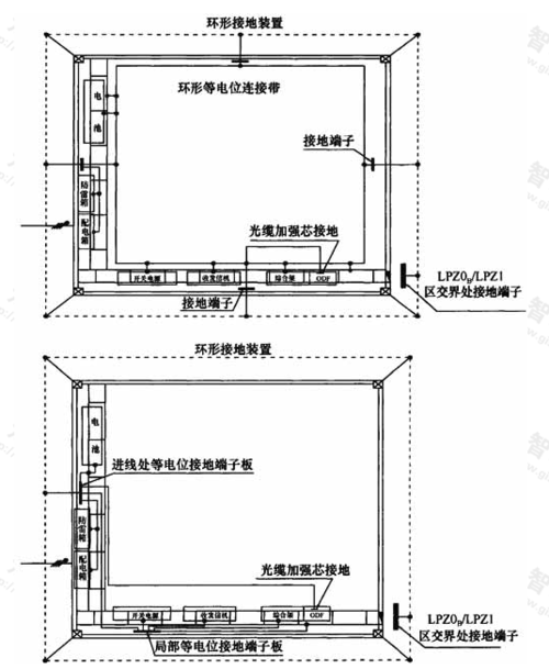
2 等电位连接
-
S型(星形)结构: 适用于小型、低频系统,所有需要接地的设备,从各自的接地端子直接引一条线到唯一的接地基准点(总接地排),优点是避免环路干扰,缺点是接地线长,可能引入阻抗。
-
M型(网形)结构: 适用于大型、高频系统,将机房内的金属物体(设备外壳、机柜、走线架)通过最短路径连接到接地网格或等电位连接带上,优点是电位均衡好,高频性能佳。
-
混合型(Ss或Mm): 实际工程中常用,结合了S型和M型的优点。
(图片来源网络,侵删) -
连接要求:
- 所有设备的金属外壳、金属门窗、金属管道等必须进行等电位连接。
- 信号线、电源线的屏蔽层应在入口处进行接地,并与等电位网络连接。
- 连接导线应尽量短、直,并使用多股铜线或铜排。
3 浪涌保护器
-
安装位置:
- 电源SPD:
- 第一级(B级): 安装在基站总交流配电箱的输入端,用于泄放大部分雷电流。
- 第二级(C级): 安装在机房内交流配电柜的输入端,用于进一步限制电压。
- 第三级(D级): 安装在重要设备(如服务器、精密仪器)的电源前端,作为精细保护。
- 信号SPD: 安装在所有进出基站的信号线缆(天馈线、2M线、以太网线、光缆加强芯等)的入口处,靠近设备端口。
- 电源SPD:
-
SPD选型:
- 最大持续工作电压:必须高于线路的最高工作电压。
- 冲击电流 和 标称放电电流:根据基站所处地区的雷暴等级和线路的屏蔽情况选择,确保其通流容量足够。
- 电压保护水平:必须低于被保护设备的耐受电压。
- 响应时间:越快越好。
-
天馈线防雷:
- 同轴电缆: 在信号进入机房前,应在铁塔或抱杆上安装天馈线浪涌保护器,并确保SPD的接地端子与铁塔或建筑物接地系统可靠连接。
- 接地要求: 同轴电缆的屏蔽层应在SPD处进行360°接地,如果电缆长度超过15米,建议两端都接地。
基站类型差异
| 基站类型 | 防雷接地特点 |
|---|---|
| 宏基站 | - 室外设备多:天线、RRU/BBU、馈线、电源线等都暴露在外,是雷击的重点。 - 铁塔/抱杆:必须做好接闪和引下,RRU等室外设备需就近良好接地。 - 电源线长:从市电引入到机房,感应雷风险高,需做好多级电源SPD防护。 |
| 微基站/皮基站 | - 通常安装在室内(如楼道、机房、灯杆),无室外天线。 - 防护重点:主要是市电电源引入和信号线(如网线)引入的浪涌。 - 接地要求:设备外壳和线缆屏蔽层需与室内接地系统可靠连接。 |
| 室分基站 |
